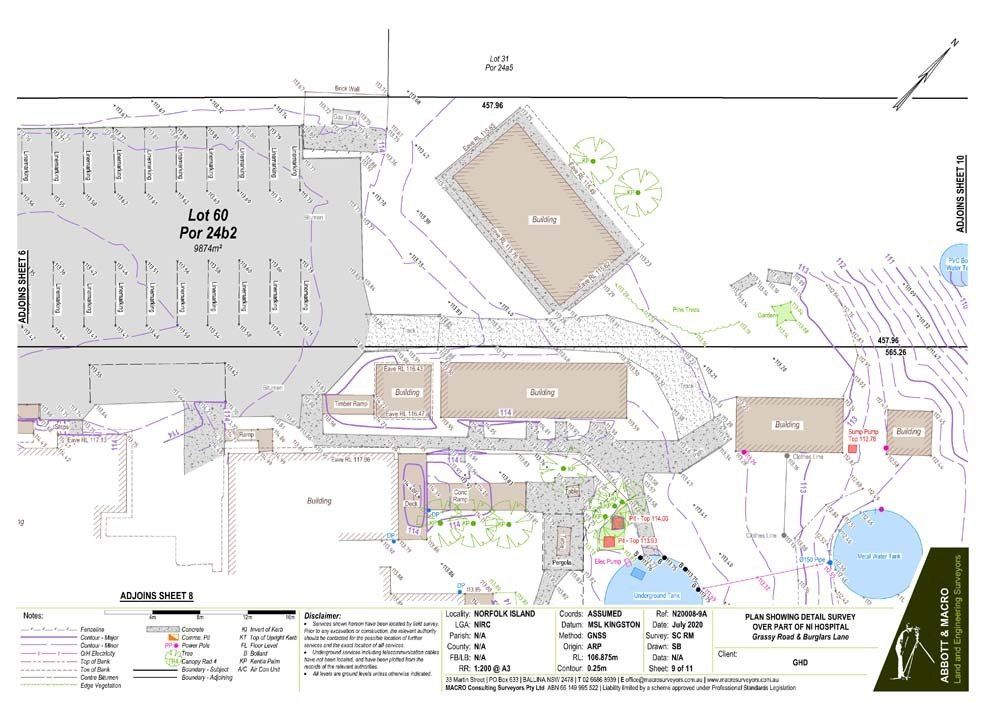
Land Surveying Projects and Plans
As experienced land surveyors, we have completed multiple projects for commercial, land and industrial customers. We provide exceptional land surveying services to customers throughout New South Wales. Our services also include sharing our knowledge to give you an idea of the work and providing standard plans. Check out our latest projects.
Have more questions? Download our plans to know more.






